Ex of In House projetada pelo arquiteto Steven Holl, é uma casa escultórica em Nova York autossuficiente em energia e com muita luz natural.
“Um edifício deve oferecer mais quando você entra nele do que quando você o vê de fora. ” A frase, do arquiteto norte-americano Steven Holl, se aplica a uma de suas obras mais recentes, a casa de hóspedes criada para um artista plástico em Rhinebeck, Nova York, nos Estados Unidos.
Relacionado: “Casa domo” gira para aproveitar a luz do Sol
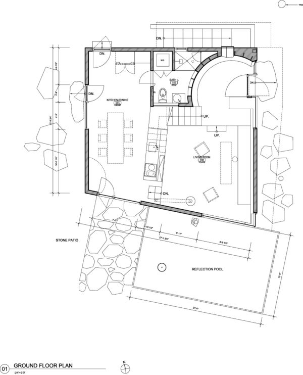
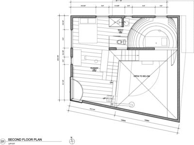
Batizada de “ Ex of In House ”, a construção multifacetada surpreende com o seu escultural interior de madeira que parece ter sido talhado, revelando vazios com formas geométricas espaciais como esferas, paralelepípedos e prismas.
Criada para cinco hóspedes, mas sem nenhum quarto, a casa de 85m2 é autossuficiente em energia elétrica, que é parcialmente gerada por um filme fotovoltaico aplicado na cobertura. O restante é produzido por um sistema de aproveitamento da energia geotérmica (obtida pelo calor proveniente do solo).
Graças ao projeto, foi preservada uma grande área florestal que seria dividida em 5 lotes para a construção de casas.
“Esta casa, com seus vazios internos e compressões, serve como alternativa às casas modernistas de subúrbio que se espalham pela paisagem”, explica Holl.
O nome “ Ex of In House ” decorre do projeto de pesquisa do qual a casa faz parte: “Explorations of In”. Iniciado em 2014 pelo escritório de Holl, o trabalho tem o objetivo de explorar e questionar os clichês da linguagem arquitetônica e da prática comercial.
Na “ Ex of In House”, o hall de acesso de madeira, marcado pelo vazio em forma de esfera, é banhado pela luz natural que penetra o espaço pelas aberturas semicirculares que, aliás, são recorrentes na casa.
Uma claraboia de mesma forma deixa a iluminação natural entrar e percorrer os três níveis que compõem a construção.
O tratamento que a materialidade atípica da casa dá à luz foi previsto por meio de maquetes físicas e aquarelas, que costumam servir como ferramentas de projeto para o arquiteto ao criar suas obras, onde ele costuma esculpir vazios geométricos conhecidos como “vazios booleanos”, que caracterizam seu trabalho.

Esses vazios estão presentes em projetos como, por exemplo, a nova extensão do Museu da cidade de Mumbai, um dos mais antigos da Índia.
Para projetá-lo, seu escritório teve de vencer um concurso onde participaram nomes de peso como Rem Koolhaas e Zaha Hadid.
Atrás da escada central fica a cozinha e a sala de jantar, que se abrem para um pátio com piscina.
A casa é integrada ao entorno por meio de grandes aberturas como o grande vão circular se estende por três planos (duas paredes e o piso), provocando no usuário a sensação de estar imerso na floresta.
Ficha técnica:
Ex of In House
Rhinebeck (NY), EUA
Ano de projeto: 2014
Ano de construção: 2016
Arquitetura: Steven Holl Architects
Steven Holl nasceu em Bremerton, Washington (EUA), em 1947. Formou-se em arquitetura pela Universidade de Washington e fez pós-graduação na Architectural Associacion de Londres (AA). Fundou o próprio escritório, Steven Holl Architects, em Nova York, em 1976. É vencedor de prêmios como o Praemium Imperiale (2014), o Premio de Arquitetura Cooper Hewitt (2002) e a Medalla Alvar Aalto (1998). Dentre suas obras, destacam-se a Texas Sterro House (EUA), o Museu de Arte Contemporânea de Helsinki (Finlândia), o complexo residencial Makuhari (Japão), o Museu do Oceano de Biarritz (França) e o Museu de Arte Nelson-Atkins (EUA) e a ampliação da Biblioteca Americana em Berlim (Alemanha).
Fonte: ZoomBlog
Imagens: Paul Warchol















