Um pequeno grupo de professores decidiu iniciar uma nova escola em Maiorca com um projeto pedagógico baseado na construção conjunta de um futuro mais colaborativo, empático e ecológico. Começaram numa casa de campo e depois precisaram de mais espaço.
Para construir esse novo espaço da Escola Arimunani, os escritórios de arquitetura Aulets e Aixopluc, como consultoria ambiental da Societat Orgànica, inspiraram-se nos mosteiros mediterrânicos existentes na ilha espanhola, reverenciando a arquitetura vernacular.
A principal característica desses mosteiros é como eles se protegem das intempéries e criam um oásis em seus pátios internos.


Arquitetura Bioclimática
O projeto se inicia analisando as condições climáticas do local, para depois traçar as ações necessárias para que um local quente e seco possa, em poucos anos, se tornar um refúgio climático.
Uma vez traçado o plano principal, a primeira etapa foi plantar as árvores bem à frente do futuro edifício, para que tivessem tempo suficiente para crescer enquanto as várias fases da escola são construídas.
As árvores são a principal arquitetura do lugar, que além de proteger o edifício do calor, forneceram sombra, abrigo e espaços de brincar para as crianças.




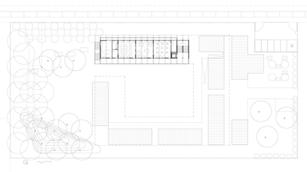
A nova escola é organizada em torno de um pátio aberto e em dois andares, para otimizar a pegada do terreno e criar um microclima protegido.
O edifício foi projetado para se proteger da radiação do verão através da sombra das árvores e dos balanços, para facilitar a ventilação natural cruzada e a radiação no inverno.

Materiais sustentáveis
A escola em maiorca é construída principalmente com materiais da biosfera, o que permite reduzir a energia incorporada em 65% das emissões de CO2.


O piso é de linóleo (óleo de linhaça e serragem), os painéis externos são de aparas de madeira e cimento, que garantem durabilidade. Os beirais do telhado são protegidos com chapa de zinco.
A estrutura é feita em de madeira laminada cruzada CLT, totalmente pré-moldada que permite um processo de preparação e montagem mais de 3 vezes mais rápido do que um de convencional.
O sistema de montagem torna toda a estrutura facilmente removível, podendo ser reutilizada – inclusive reconfigurada – em qualquer outro lugar
A madeira utilizada é certificada pelo FSC, que garante essa a madeira vem de fazendas que promovem o manejo ambiental apropriado, é socialmente benéfico e ecológico



Além disso foram selecionados, sempre que possível, materiais regionais, uma vez que reduzem o impacto do transporte associado que em alguns casos pode significar mais energia ou emissões de CO2 do que a própria fase de extração e fabricação, contribuindo ao mesmo tempo para fechar os ciclos dos materiais em escala local.
Ciclo da água da escola em Maiorca
Aprendendo como as gerações anteriores administraram e celebraram o ciclo da água para aproveitá-lo ao máximo este escasso recurso, sem o contaminar.
O projeto desenvolve uma rota onde a coleta e aproveitamento da água da chuva é visível para as crianças, que se torna mais uma das áreas de jogos deste ambiente de aprendizagem.

Arimunani é uma escola em Maiorca que, segundo eles, não se limita a uma única pedagogia e que cria um método único para acompanhar meninos e meninas em seu desenvolvimento completo. Para isso necessitavam uma arquitetura sustentável que acompanhasse sua metodologia e oferecesse ferramentas para essa missão educativa
Fontes e imagens: Aulets, Aixopluc e Escola Arimunani
Fotos: José Hevia





