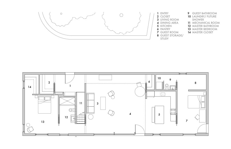
Essa casa passiva em Nova Iorque, localizada na aldeia de Accord, é uma residência contemporânea, mas sensível ao meio ambiente, assim como a cultura e a história local.
Os arquitetos inspiraram-se nos prédios de fazendas rurais para o fazer o projeto de uma casa triangular, semelhante a um celeiro, que enfatiza a conexão com o exterior e os espaços flexíveis que podem acomodar as necessidades de mudança dos proprietários de residências.
Como nos edifícios agrícolas tradicionais, os materiais de construção dessa casa passiva em Nova Iorque foram selecionados para longevidade, durabilidade e propriedades de baixa manutenção.
O revestimento de aço corrugado galvanizado envolve o exterior, enquanto uma laje de concreto com acabamento espatulado é usada para o piso interno. O entorno da casa é um pátio de cascalho, que não requer irrigação (jardim xeriscape).



“Os materiais de acabamento interno e externo foram escolhidos por sua reutilização adaptativa e propriedades de baixa extração de recursos, incluindo o uso de madeira usada na construção para acabamentos, ripas de carvalho branco recuperadas e cortiça”, acrescentou a empresa. “A cortiça foi usada por dentro e por fora pela sua colheita sustentável e ampla utilidade para a acústica, resistência à água e valor de isolamento.”
Relacionado: Casa Passiva de bambu na França
Coberta com uma matriz fotovoltaica de 9kW, a impressionante configuração de energia net-zero também foi criada para mostrar como o design da Passive House pode ser bonito, resiliente e confortável sem incorrer em custos altíssimos.
A empresa disse que alcançou “um preço competitivo por metro quadrado em relação aos custos regionais para esse nicho de mercado”.
Durante a construção, os arquitetos organizaram eventos de aprendizados abertos para promover o compartilhamento de métodos e soluções de design com eficiência energética com o comunidade local.
Também treinaram empreiteiros sem experiência anterior na Passive House para atingir com sucesso os altos padrões de estanqueidade, isolamento e qualidade de construção que a certificação exige.
Segundo os arquitetos, os objetivos dos clientes foram alcançado nesse projeto de casa passiva em Nova Iorque. Além da garantia de menor uso de energia, talvez de igual importância para eles foram outras metas, ter uma casa saudável, confortável e de baixa manutenção.



Fonte: Inhabitat
Fotos: Deborah DeGraffenreid da North River Architecture & Planning








