Invertendo o termo casa na árvore, arquitetos construíram uma bela casa de terra em Hanoi, no Vietnã, em que árvores na verdade foram plantadas no telhado da construção.
Unir a natureza a arquitetura é algo relativamente comum no país, mas o escritório Vo Trong Nghia Arquitects quis mostrar como essa tradição pode se adaptar muito bem ao design moderno.



As paredes são todas construídas de taipa de pilão, terra compactada devidamente moída e misturada com cimento e outros componentes, chegando a espessuras de 36 cm.
Um detalhe importante: o solo foi coletado bem próximo ao local da construção, num raio de até 32 quilômetros, uma iniciativa que barateia e deixa a casa mais sustentável, uma vez que foi diminuída a necessidade de transporte para conseguir o material, reduzindo as emissões poluentes relacionados ao mesmo.


Essa mistura de cimento e terra é um eficiente regulador térmico natural, acumula o calor nas paredes durante o dia mantendo a casa fresca e no fim do dia esse acúmulo se dissipa.
Veja também: 10 espetaculares obras de Vo Trong Nghia
Os moradores de estruturas com essa característica tem menor necessidade de usar ar condicionado ou aquecedor, o que significa menos gasto de energia elétrica e mais economia no fim do mês.


Nichos especiais foram instalados no telhado para que árvores frutíferas pudessem ser plantadas e o resultado é um espaçoso lar – 5832 metros² e 5 quartos – completamente cercado pela natureza. Sombra de graça e frutas ao alcance da mão. Um oásis no meio da cidade.
A casa de terra em Hanoi, conhecida como Dong Anh House, não é o primeiro projeto onde os arquitetos Vo Trong Nghia Architects colocaram árvores no telhado, a solução já havia sido aplicada na House of Tree, também no Vietnã.

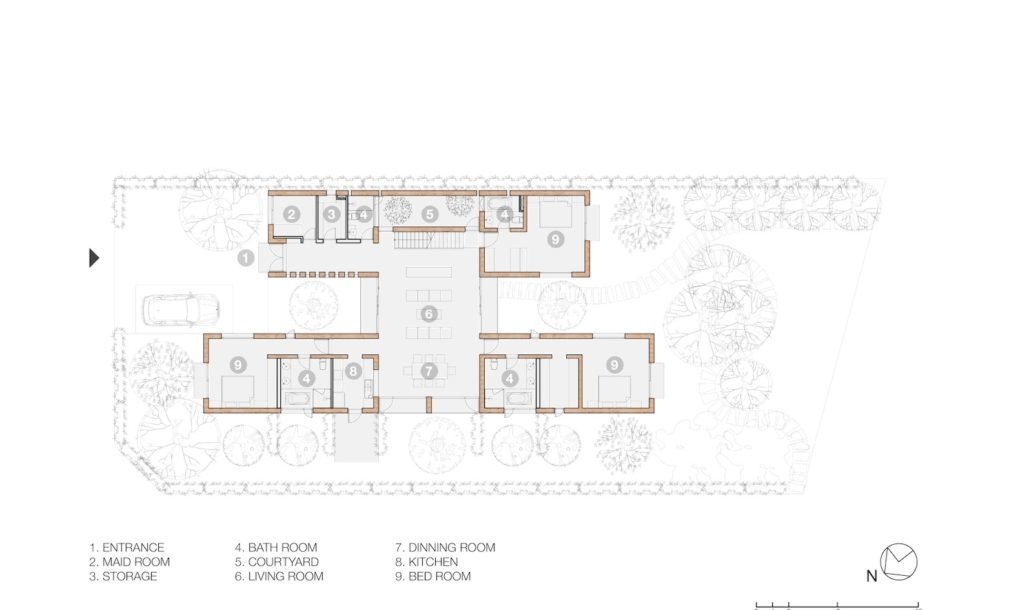
Projetado para uma família grande, a casa é espaçosa, com dois andares e uma planta em forma de H.



Imagens Hiroyuki Oki






