Casa de bambu nas Filipinas tem um sistema modular com estrutura simples, materiais acessíveis regionalmente e economicamente, além de técnicas sustentáveis de construção.
O jovem designer de 23 anos, Earl Patrick Forlales desenvolveu o projeto da casa Cubo em Manila como solução para a crise habitacional no país e ganhou um prêmio internacional de 50 mil libras.
Não é a primeira vez que o bambu é solução para construções de baixo custo e usado como alternativa para habitação social, esse tipo de construção já ganhou espaço no México, Bali e agora é a vez das Filipinas.
A casa Cubo como foi denominada, ganhou o primeiro lugar no concurso mundial Cities for Our Future organizada pela Royal Institution Of Chartered Surveyors (RICS) em parceria com a UNESCO UKNC e a ACU.
O concurso tinha como objetivo receber projetos com soluções para os problemas de atualidade como: rápida urbanização, mudança climática e escassez de recursos.
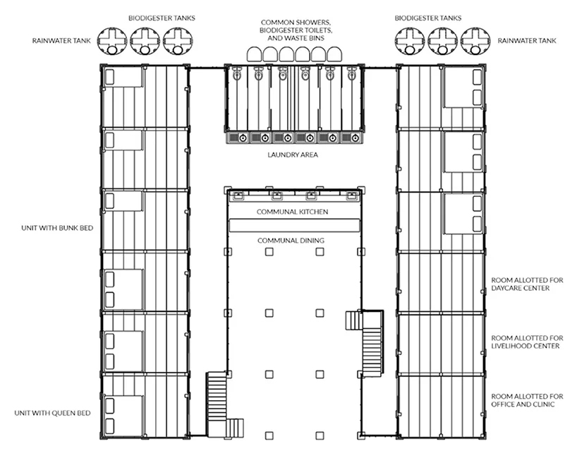
O projeto da casa de bambu nas Filipinas foi inspirada na casa de campo dos seus avós. Com design modular simples e materiais baratos e duráveis.
Cada módulo tem em torno de 12 m² e podem ser construídos em apenas quatro horas a um custo de apenas £ 60 por metro quadrado.

Os módulos podem ter diversas conformações e no projeto apresentado no concurso as áreas privativas fica nas extremidades externas deixando uma área central para uso comum com banheiros, lavanderia, cozinha, escritórios podendo inclusive ter espaços como day care e clínicas.
Esses tipos de espaços proporcionam maior interação entre os moradores da comunidade fazendo assim surgir senso de pertencimento e comunidade.

Devido ao baixo custo e rápido tempo de construção as unidades teriam um preço de aluguel acessível em torno de £ 0,20 por dia.
Isso representa uma economia significativa em relação às alternativas existentes disponíveis em Manila, capital das Filipinas onde vive o jovem Forlales e 12 milhões de pessoas sendo que um terço dessa população mora em favelas.
O principal componente da casa que é o bambu, é um material muito utilizado em construções sustentáveis por ser um material que não é prejudicial à natureza já que libera 35% mais oxigênio que as árvores e pode ser colhido anualmente sem causar degradação do solo,
Além disso a casa cubo ainda possui estrutura em palafitas para as épocas de enchente, captação da água da chuva, redução do ganho de calor, ventilação cruzada e biodigestores na área comum.


Com o valor do prêmio e vendendo lixo plástico para fábricas Forlales pretende levantar fundos para fazer o protótipo e implantar os primeiros pilotos do projeto em Manila.
“Engineered bamboo is here and it’s going to stay. We know how to work the material and we can built our future cities around it.” (a construção de bambu existe e veio para ficar. Nós sabemos como trabalhar o material e podemos construir o futuro das nossas cidades com ele) diz seu idealizador.
Imagens: BBC





