Nessa Casa Container localizada na área rural de Campos Novos Paulista, em São Paulo, cerca de 80% dos materiais utilizados na construção foram reaproveitados, incluindo os contêineres marítimos que compõem a maioria da estrutura.
O objetivo da construção, que é utilizada como casa de campo, é conectar os usuários à natureza, por isso a casa fica elevada do nível natural do solo do sítio onde foi implantada. Como a casa estar rodeada por árvores nativas, dessa forma as janelas ficam na altura da copa das árvores e as varandas se misturam com os galhos das mesmas.
Assim como, não há televisões ou Wi-Fi disponível na propriedade, para que todos possam se desconectar o máximo possível do mundo exterior.


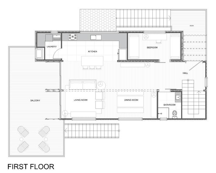
A casa container tem dois quartos, dois banheiros e uma bela cozinha que se abre para os espaços de convivência. Os interiores decorados em madeira, criam um ambiente aconchegante e acolhedor.
Características sustentáveis da Casa Container:
– Implantação no terreno:
Primeiramente, a implantação da construção suspensa preserva a drenabilidade do solo e a dinâmica das raízes das árvores.
Além disso o sistema em “v” dos pilares metálicos que fazem a sustentação da casa container, diminui a área de fundações, pois gera uma única base para dois apoios. E também proporciona economia de concreto.
As fundações são do tipo rasas pois o peso da casa é relativamente leve e o solo é firme.
– Materiais reaproveitados:
No total 80% dos materiais são reaproveitados. Desde o sistema construtivo adotado de contêineres marítimos reciclados, até o revestimento interno, onde predomina a madeira de demolição nas paredes e teto.

A madeira de demolição além de ser um material reaproveitado, evita a utilização de pintura interna, pois já que tem seu próprio acabamento.
As portas internas do primeiro andar da casa são feitas com chapas reaproveitadas dos recortes dos containers, minimizando a sobra de material. Dessa forma, o resíduo final da obra, basicamente em retalhos de madeira e aço, foi 70% reaproveitado.
– Telhado verde tipo modular:
O sistema modular facilita a manutenção, também possui um sistema de armazenamento da água da chuva, para minimizar a necessidade de irrigação. As coberturas verdes proporcionam um maior conforto térmico no interior da casa, além disso integram mais ainda a casa com a natureza.
–Ventilação Natural:
Os ambientes da casa container possuem ventilação cruzada e amplas aberturas para troca de ar e conforto térmico. Como resultado, a casa não possui sistema de ar condicionado e, segundo os arquitetos, se mantem agradável mesmo nos dias mais quentes.
– Isolamento térmico:
Uma das desvantagens das construções em contêiner é que deve-se dobra a atenção nesse quesito. Por isso, além da implantação sob as árvores que proporciona sombreamento à casa durante todo o dia, e da utilização das estratégias citadas acima de ventilação e telhado verde, todas as paredes da casa são isoladas com manta termo acústica para maior conforto.


Enfim, e você, já pensou em viver num casa container? Deixe a sua opinião nos comentários.
Fotos: Celso Mellani – Projeto: Casa Container Marília















